2022. 8. 29. 16:02ㆍ재테크/부동산
아난티 회원권에는 펜트하우스 회원권과 레지던스 회원권 두가지가 있습니다.
레지던스 회원권으로는 프라이빗 레지던스 룸 타입들을 이용가능하고, 펜트하우스 회원권은 레지던스 룸타입을 포함하여 더 넓은 펜트하우스 룸들을 이용가능한 것이 특징입니다.
아난티 코브에는 총 6가지 종류의 펜트하우르 룸타입을 보유중인 것으로 홈페이지에 나와있는데요.
- 테라스풀하우스A
- 테라스풀하우스B
- 씨사이드 A
- 씨사이드 B
- 씨사이드 패밀리
- 씨사이드 스페셜
각 방 타입별 특징을 알아보도록 하겠습니다. 여기 기술된 자료는 아난티 공식 홈페이지(https://ananti.kr/ko/cove)에서 확인하였으며 자세한 자료는 해당 사이트에서 확인 가능하지만, 한눈에 요약하여 보기 좋게 정리 해 보았습니다.
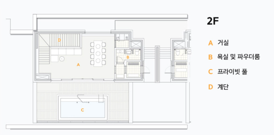
1. 테라스 풀하우스 A [350㎡ (침실2, 거실1, 욕실2, 프라이빗 풀 1), 정원 4명]
테라스 풀하우스 A 의 도면입니다.
가장 눈에 크게 띄는 부분은 바다쪽으로 위치한 프라이빗 풀인데요. 아기를 데리고 놀러갔을때 아주 놀기 좋겠다는 생각이 듭니다. 침실/욕실도 두개씩인데, 두커플이 와서 각자의 욕조에서 반신욕도 즐길 수 있게 되어 있네요.
또한 풀 사이드에 배치된 데이 베드와 파고라의 그늘에서 독서를 즐기거나 낮잠을 즐겨도 될 것 처럼 보입니다.
가격은 1박에 32~46만원 선입니다.

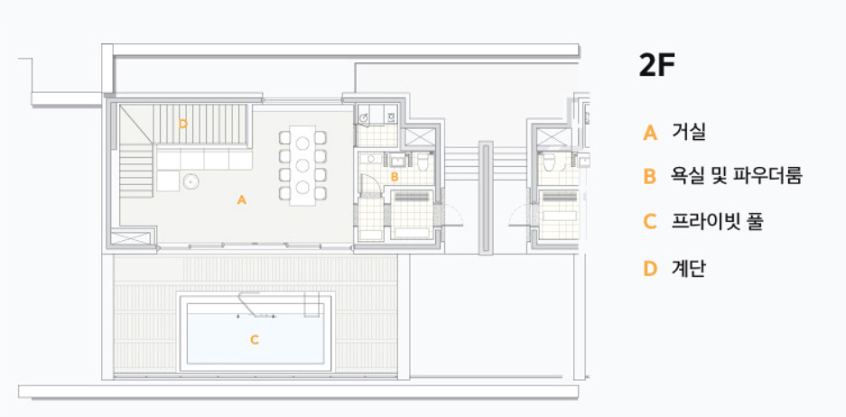
2. 테라스 풀하우스 B [480㎡ (침실2, 거실1, 욕실2, 프라이빗 풀 2), 정원 4명]
테라스 풀하우스 B 와 A 의 가장큰 차이점은 단층이냐 복층이냐 입니다.

이건 1층의 도면인데요, 아까 알아본 테라스풀하우스A 타입과 대동수이 하지만 조금 더 넓은 느낌이라고 보시면 되겠습니다. 프라이빗 풀도 동일하구요.

다만 이렇게 2층으로 올라가면 프라이빗 풀이 1개 더 있는 것이 특징입니다. 바로 옆에 실내에서 도란도란 모여 얘기를 나눌수 있는 거실겸 다이닝 룸도 마련되어 있구요.
테라스 풀하우스 B 타입은 복층이기 때문에 특성상 아난티 최상층 10층에 위치하고 있어서 가장 높은 뷰를 즐기 실 수 있습니다.
가격은 정회원 61만원에서 ~ 81만원 선입니다. A 대비해서 두배로 보시면 됩니다.
3. 씨사이드 A [350㎡~ (침실2, 거실1, 욕실2, 프라이빗 풀 1), 정원 4명] - 객실수 3개

Seaside A 는 풀하우스 타입과 조금 떨어진 D 동에 위치해 있습니다. 바다에 가장 가까운 것이 특징이고 다른 룸에서 보이지 않기 때문에 조금 더 프라이빗 하다고 할 수 있습니다.

구조는 풀하우스 타입과 비슷하나 소소한 디테일이 조금 다른 수준입니다. 방별로도 조금 다를 수 있구요.
가격은 정회원 기준 42만~55만원 선입니다.
4. 씨사이드 B [840㎡ (침실 3, 거실 1, 욕실 3, 다이닝 룸 1, 프라이빗 풀 1), 정원 6명] - 객실수 2개
Seaside B 타입은 A 타입과 마찮가지로 D 동에 위치해서 조금더 Private 하고 바다와 가깝습니다.
A타입에 비해 B 타입의 다른점은 복층구조와 야외정원이 있다는 점입니다.

1층에 보시면 거실 옆에 정원도 있고 공간이 다 큼직큼직해서 여러 가족이 묵기에 안성맞춤으로 보이네요.

2층은 테라스 풀하우스의 구조와 비슷하다고 보시면 됩니다.
침실이 1층에 1개 2층에 2개로 총 3개기에 6명이 아주 넉넉하게 지낼 수 있겠죠?
가격은 정회원 기준 85만원에서 115만원까지 입니다.
5. 씨사이드 패밀리 [838㎡ (침실 2, 거실 1, 욕실 2, 프라이빗 풀 1), 정원 6명] - 객실수 1개
말그대로 가족을 위한 방입니다. 역시나 Seaside 기에 D동에 위치하고 있구요. 다른방에 비해 엄청 커진느낌 드시나요?

가격은 정회원 기준 평일 85만~성수기 115만원 입니다.
6. 씨사이드 스페셜 [1540㎡ (침실 4, 욕실 4, 리빙룸 2, 다이닝룸 2, 미디어룸 1, 프라이빗 풀 1), 정원 8명] - 객실수 1개
말그대로 스페셜룸입니다. 가격도 정회원 기준 평일 200만원부터 시작해서 성수기 230만원이니까요.
아난티 코브에서 제일 비싼방입니다.

1층에서 가장 눈에 띄는 부분은 G 미디어룸이군요. 어떻게 구성되어 있을지 궁금합니다만 수영하고 영화 한편보면 꿀잼일것만 같네요.

침실은 1층에 2개 2층에 2개로 총 4개입니다. 4가족이 와서 놀아도 충분한 공간이죠. 거의 하우스 파티를 해도 될정도?
한 번 가보고싶긴하지만 전 아직 소가족이라....다음기회에...
이상 아난티 펜트하우스 룸타입 정리 끝!
'재테크 > 부동산' 카테고리의 다른 글
| 가평 아난티코드 무라타 하우스 아이랑 실제 숙박 후기! 꿀팁! (0) | 2023.04.17 |
|---|---|
| 아파트 리모델링 취득세율 계산법 총정리 (1) | 2023.03.29 |
| 아난티코브 프라이빗 레지던스 룸타입 총정리 (0) | 2022.08.19 |
| 아난티 회원권 최신 가격/시세 얼마일까?(펜트하우스, 레지던스) (0) | 2022.08.17 |
| 법인 업종 추가 셀프등기 필요서류 준비물 총정리 (사업자 등록증 변경 포함) (0) | 2022.07.25 |